


èŠæŽããã®ããæ¥åžžã§ãåè²ãŠãæ®ãããã®ã³ã®ã³ãšã人æ°ã®é§ ãã«ç©ä»¶ãæ±æžå¡ã¬ãŒããã¢ã€ãŒã¹ããã«ãºã5é
æ±æžå¡ã¬ãŒããã¢ã€ãŒã¹ããã«ãºã®ãã³ã·ã§ã³æ å ±ãèŠã2,680äžå
éåã
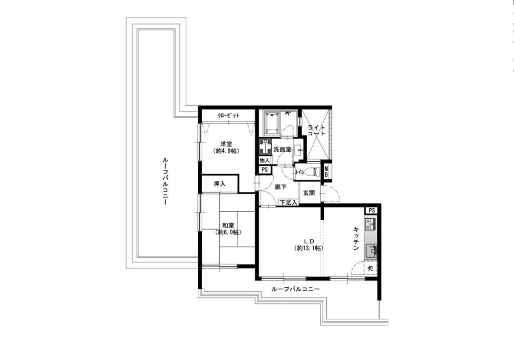
2LDK
é¢ç©
56.26m²
åã
å西
éå±€
5é
ç¯å¹Ž
1986幎5æ
æå¯é§
æ±æžå¡é§ åŸæ©5å
- ç©ä»¶ã®è©³çްæ å ±ã»åšèŸºç°å¢ããŒã¿ãæŽæ°
äŸ¡æ Œæ å ±
åºæ¬æ å ±
ç¥å¥å·ç暪æµåžæžå¡åºåæ¿çº512çªå°10
ç®¡çæ å ±
宀å èšå
å ±çšæœèš
ã¢ã¯ã»ã¹ã»åšèŸºé§
å©çšå¯èœãªè·¯ç·
è¿ãã®é§
æ±æžå¡
åŸæ©çŽ6å(0.4km)
ãã®è¡ã«äœããªã
ãã®è¡ã«äœããªã
äœãã§ããè¡ã«ã€ããŠã売䞻ããã«æããŠããã ããŸããã
é§ ã®åšãããæ£æ©
æ±æžå¡é§ ã¯å€§ããªãã«ããã£ãŠäººéããå€ãã§ãããé§ åšèŸºã¯æ®æ®µã©ã®ãããªé°å²æ°ã§ããããã
é§ çŽçµã®ã¢ã¬ã©ã西æŠããããè²·ãç©ãã©ã³ãã§ã«ããã£ãŠããŸãããæå€ã¯éå€éåŠã®äººãå€ããéãæŽåãããŠããŠæ©ãããããå®å¿æããããŸãããã«ãããããããã§ãçæŽ»ã«ã¯åå䟿å©ãªãã¡ããã©ããäœã¿ãããè¡ãšããå°è±¡ã§ãã
æ¥åžžã®è²·ãç©ãã°ã£ã¡ãã§ããã
é§ è¿ãã®ãªãŒã±ãŒã¯ãšã«ããäŸ¡æ Œãå®ããŠåæããè±å¯ãç¹ã«çé®®é£åã¯è³ªãè¯ããŠã³ã¹ããé«ãã®ã§ã鱿«ã®ãŸãšãè²·ãã«ããŽã£ããã§ããããã«ããã¡ã®ãã³ã·ã§ã³ã®é£ã«çåç³»ã¹ãŒããŒããããŒãããããã§ãããããã¯ææ©éèãç¡æ·»å é£åãå å®ããŠããŠãå¥åº·å¿åã®æ¹ã«ãå¬ããåæããã¡ãã£ãšããè²·ãè¶³ãã«ã䟿å©ã§ããïŒ
é§ ãããã³ã·ã§ã³ã®éäžã«ããããããåºããã£ãŠãããªãšæããŸããã
ãåŒåœå±ãããã«ãã§ãããŒã«ãªãŒããããé§ è¿ã§ãããªã«ããªãšãŒã·ã§ã³ãããã®ã«ãã¬ã€ã¬ã€ããããäœãã§ããŠããããããããã§ãã
æ²»å®é¢ã¯ãããã§ããã
é§ åã¯æããã人éããå€ããããå€ã§ãå®å¿ããŠæ©ããé°å²æ°ããããŸããç¹ã«é§ æ±å£ããç©ä»¶ãŸã§ã®ã«ãŒãã¯è¡ç¯ãæŽåãããåž°å® æã«æããæããããšã¯ãããŸãããé§ è¿ãã®äº€çªãå®å¿ææã®äžã€ã§ããå šäœçã«ã女æ§ã®äžäººæ®ãããåè²ãŠå®¶åºã«ãå®å¿ããšèšãããæ²»å®ã®è¯ããšãªã¢ã ãšæããŸãã
ã»æ±æžå¡èšå¿µç é¢ãæ±æžå¡é§ ããåŸæ©11å
ã»è¥¿æŠæ±æžå¡S.C.ãæ±æžå¡é§ ããåŸæ©7å
ã»ããã¥ã©ã«ããŒãœã³ æ±æžå¡é§ æ±å£åºãæ±æžå¡é§ ããåŸæ©1å
ç©ä»¶ã®åšãããæ£æ©
ãã³ã·ã§ã³ã¯é§ ããè¿ãã®ã§å©ãããŸããã
éå€ã¯åŸæ©ã§æ±æžå¡é§ ãå©çšããŠããŸãããéšã®æ¥ã§ããµããšåããããŠæ©ããè·é¢æã§ãæ¬åœã«ã¹ãã¬ã¹ãå°ãªãã§ããè·ç©ãå€ãæ¥ã§ãèŠã«ãªãããè²·ãç©åž°ããæ¥œã¡ãããããŒã«ãŒãã·ãã¢ã®æ¹ã§ãç¡çãªãæ©ããã«ãŒãã§ããã
飲é£åºãå€ããããããã蚪ããŠã¿ãããšæããŸããã
å®ã¯æ±æžå¡ã«ã¯ä»¥åãé§ ã®è¿ãã«ç§å ŽããããããŒã ããçãèŠããŠããŸããããã®ç§å ŽçŽå¶ã®ãœããã¯ãªãŒã ã·ã§ãããããã®ã§ãã²èšªããŠã»ããã§ãïŒ
ç§å Žã¯é©ãã§ããããåãããšäžç·ã«æ¥œããããã§ããä»ã«ãå ¬åããããããã£ãŠå®¶æã§æ¥œããããšãªã¢ã ãªãšæããŸããã
ãããªãã§ãããçœæå±±å ¬åãåæ¿äžå€®å ¬åãªã©ãåŸæ©åå ã«å€§å°ã®å ¬åãããã€ãç¹åšããŠããŠãæ°å転æã®æ£æ©ãåã©ããšã®å€éã³ã«ãŽã£ãããç¹ã«åæ¿äžå€®å ¬åã¯éå ·ãåºå Žãå å®ããŠããŠã鱿«ã«ã¯å®¶æé£ãã§ã«ããã£ãŠããŸãã
ã»ç掻ã¯ã©ãçå æ±æžå¡ãããŒãç©ä»¶ã®ç®ã®å
ã»ãã¡ããªãŒããŒã æ±æžå¡é§
æ±å£åºãç©ä»¶ããåŸæ©1å
ã»æšªæµåžç«åæ¿å°åŠæ ¡ãç©ä»¶ããåŸæ©3å
ãåºãããããªã
ã¡ãã£ãšããæ
è¡æ°åãå³ãããè¡ãåéåã¯ãããã§ããããé»è»ãªã15åã»ã©ã
寺瀟巡ãããã€ãã³ã°ãããããéåé§
åšèŸºã§é£ã¹æ©ããã«ãã§å·¡ããç±æ¯ã¶æµãé·è°·æ¹é¢ãžè¶³ãå»¶ã°ããŠæµ·ãèŠãªããã®ãã³ãããªããŠäŒæ¥ã«ã¯ãŽã£ããã
æ¹åã®æµ·ã暪æµã®è¡ãèªç¶ã®å€ãéå€ã倧åã¢ãŒã«ãªã©ãå šéšã1æéåå ã«åãŸãã®ã倧ããªé åã§ããé«ééè·¯ïŒæšªæµæ°éã»æšªæšªéè·¯ã»ä¿åã¶è°·ãã€ãã¹ãªã©ïŒã®å ¥ãå£ãè¿ããåœé1å·ã䜿ããããã®ã§ãæžæ»ãé¿ããªããç®çå°ã«è¡ããããã§ãã
ç§ããã®è¡ã«äœããªãâŠ
å°å ã®ãåºå·¡ãã鱿«ã®å°æ è¡ãªãããçæŽ»ã®äžéšã«ããŠãå¿ããã«è¿œããããèªåãããæéãå³ããããããªã©ã€ãã¹ã¿ã€ã«ãéãããã§ãïŒ
ãªãããããªã
ãªãããããªã
ç©ä»¶ã«ã€ããŠã売䞻ããã«æããŠããã ããŸããã

ïŒéåãå³ïŒ

èŠçãæãããªãã³ã°ã®åºãããšå®€å ã®æãããå°è±¡çãããã«å®€å ã«å ¥ã£ãŠçªãéãããšã空æ°ãã¹ãŒããšæããŠæ°æã¡ããããã ãªããšæããŸãããé³ãéãã§ãè§éšå±ç¹æã®ãã©ã€ããŒãæãã°ã£ã¡ãïŒ
ïŒçé¢ïŒ


å£äžé¢ã®ãªãŒãã³æ£ãå°è±¡çãªçé¢ã¹ããŒã¹ã
éŽã ãã§ãªããæ è¡ã«ãã³ããå°ç©ããŸãšããŠåçŽã§ããå®çšçãªèšèšãã³ã³ãã¯ããªç©ºéãªãããèŠããåçŽãšããŠã®æ©èœæ§ã®ãã©ã³ã¹ãå¿å°ããæŽã£ãŠããŸãã
ïŒLDKïŒ



çœãåºèª¿ã«ãæšã®çŽ æããã©ã³ã¹ããé 眮ããLDKã宀å çªã空éãããããã«åããæãæãæŒåºã倩äºã«ã¯ã©ã€ãã£ã³ã°ã¬ãŒã«ãé ããå ãšåœ±ãã·ã³ãã«ã«æ¥œãããäœçœã®ããèšèšãåºã«ã¯å€§å€ã¿ã€ã«ãæ·ããå·éã§ã¢ãã³ãªå°è±¡ã«ãäœãŸãå šäœãã¯ãŒã¯ã¹ããŒã¹ãšãå ±åããããã©ããã§ç¡æ©è³ªãããªã空éãž
ïŒæŽé¢ã»æµŽå®€ã»ãã€ã¬ïŒ


ãªãããŒã·ã§ã³ã§ã¯ãé 管ããæ°ããã§ããã®ã§ãèšåãæ°ãããã®ãå ¥ããããŸãã
ïŒå宀ïŒ

ã©ã¡ãã®éšå±ãçªã®å€§ãããšæãããæ°ã«å ¥ã£ãŠãŸãããã£ãããšèªç¶å ãå ¥ã£ãŠããŠãæ¥äžã¯é»æ°ãªãã§ãååæããéãããŸãããããŠãã«ã³ããŒã«é¢ããŠããã®ã§ãéæŸæããããã¡ãã£ãšå€ã«åºãããšãã«ããµããšè¡ããã®ã䟿å©ã§ãããæã«ãŒãã³ãéãããšãã®å ã®å ¥ãæ¹ãæ°æã¡ãããã§ãã
ïŒãã«ã³ããŒïŒ

Lååã®ã¯ã€ããã«ã³ããŒã§ãå西åŽã»ååŽã®2é¢ãéããŠããããšã§ãæ¡å ã»é颚ã»çºæãã¹ãŠãæå¥ãªããé«å±€ãã«ããã³ãšç®ã®åã«å»ºã£ãŠããããã§ã¯ãªãã®ã§ãé ããŸã§èŠçãæãããã§ããæŽããæ¥ã¯ç©ºãåºãæããããŠãæ¬åœã«æ°æã¡ãããã§ãïŒ
ãã«ã³ããŒã¯å ±çšéšåãªã®ã§ãªããã¯ã§ããŸããããèªå奜ã¿ã«ã¢ã¬ã³ãžããããšã¯å¯èœã§ãã詳ããã¯ãã¡ãïŒ
ïŒãã®ä»ïŒ

ïŒãéšå±ã®å€ïŒ


æ°å以äžã«åºããšãããéæŸæãæãããéšå±ã§ãããäœã¿å¿å°ãªã©æããŠããã ããŸããïŒ
æäžéã»è§éšå±ãªã®ã§ãæãã颚éããè¯ããéããç¹ã«ãªãã³ã°ãšãã«ã³ããŒã®éæŸæã¯æ¯æ¥ã®æ®ããã«ã¡ãã£ãšããè±ãããäžããŠãããŸããããšãã«ã³ããŒã§é¢šãæããªããã³ãŒããŒã飲ãæéã¯æ¬åœã«èŽ æ²¢ã§ããã
ãšãŠã矚ãŸããã§ãããã¡ãªã¿ã«ãã®ãã³ã·ã§ã³ã¯ã©ã®ãããªäžä»£ã®æ¹ãå€ãã§ããïŒ
50ã60代ã®ã倫婊ããåè²ãŠãçµãããå®¶åºãå€ãå°è±¡ã§ããé·å¹Žäœãã§ããæ¹ãå€ããçããç©ããã§ãæšæ¶ããããŒãè¯ãæ¹ãã»ãšãã©ãäžæ¹ã§ãåè²ãŠäžã®ãã¡ããªãŒããœã€ãœã€å¢ããŠããŠããæãããããŸããè¿é£ã«å°åŠæ ¡ãå ¬åãå å®ããŠããããšãé§ è¿ã§å©äŸ¿æ§ãé«ãããšããããå ±åããã¡ããªãŒãã®å ¥å± ãèŠãããããã«ãªããŸãããã
ãã³ã·ã§ã³ã®å ±çšéšåããããã§ãããäœäººã®æ¹ã®æèãé«ããã§ããã
èœã¡çããæ¹ã ãäœã¿ç¶ããŠããããšãããšããããããšæããŸãã管ççµåããã¡ããšæ©èœããŠããŠãå ±çšéšã®æž æã»ä¿®ç¹ã»ãããŒé¢ããã¡ããšå®ãããŠããã®ã¯ãäœäººå±€ã®å®å®æããã£ãŠããã ãšæããŸãã
暪æµãéåãéåãžãæ°è»œã«ã¢ã¯ã»ã¹ã§ããæ±æžå¡ãšãªã¢ãé§ åŸæ©5ååå ãšããå©äŸ¿æ§ããããªãããåšå²ã¯ç©ãããªäœå® å°ã§ãæ¥ã ã®æ®ããã«å¿å°ããéãããåºãããŸããæäžéã®è§éšå±ã¯ãéæŸæã®ãããã«ã³ããŒãšèªç¶å ã«æºã¡ããªãã³ã°ãé åã颚éãããããå®¶æã®å£ããã«ããäžäººæéã«ãããããå¯ãæ·»ã£ãŠãããŸããé§ åã«ã¯åæ¥æœèšãå å®ããæ®ããã®ãã¹ãŠãåŸæ©åã§å®çµãéœäŒçãªå©äŸ¿ããšãèœã¡çããäœç°å¢ããã®ã©ã¡ããã倧åã«ãããæ¹ã«ããããã²ãããããããç©ä»¶ã§ãïŒ







