


戸塚駅から徒歩4分!商業施設隣接で利便性◎の「戸塚ハイライズ」10階
戸塚ハイライズのマンション情報を見る4,480万円
間取り
2LDK
面積
74m²
向き
南
階層
10階
築年
1984年 2月
最寄駅
戸塚駅 徒歩5分
- 物件の詳細情報・周辺環境データを更新
価格情報
基本情報
神奈川県横浜市戸塚区上倉田町884-1
管理情報
共用施設
アクセス・周辺駅
利用可能な路線
近くの駅
戸塚
徒歩約6分(0.4km)
舞岡
徒歩約17分(1.4km)
踊場
徒歩約25分(2.0km)
この街に住むなら
この街に住むなら
住んでいる街について、売主さんに教えていただきました。
駅の周りをお散歩
戸塚駅はブルーラインとJRの2路線があり、駅周辺には大きなビルがいくつもあって、とても住みやすそうな街ですね。
駅直結で戸塚区役所やトツカーナ、モディなどの商業ビルへ行けるので便利です。西口には商店街もあり、飲食店やベーカリー、美容院などたくさんの店舗があります。

地下鉄のブルーラインとJRの出入口は同じなのでアクセスもしやすい

戸塚区役所とトツカーナは駅直結で西口に所在

東口にあるモディ(左)と西口の商店街にあるベーカリー
大きな商業施設のモディが東口に出てすぐのところにあり、マンションからも近いですね。
モディは地下にあるスーパーを良く利用しています。ジムや家電量販店などもあり、駅直結なので雨に濡れずに行けますよ!
その他周辺施設
|
・横浜市戸塚センター(駅から徒歩5分) |
物件の周りをお散歩
マンションの隣には商業施設のアピタがあって、かなり利便性が高いですよね! どんなお店が入っているのですか?
アピタは週の半分くらいは行っています。スーパーやファミレス、100円ショップ、クリーニング店、ペットショップ、本屋などが入っています。アピタ以外にも物件の周辺にはコンビニやドラッグストア、クリニック、銀行などもありますよ。

駅近なので大型商業施設の他にもドラッグストアやクリニックなども充実している
その他周辺施設
|
・戸塚スポーツセンター(マンションから徒歩2分) |
お出かけするなら
電車なら
ブルーラインに乗れば、みなとみらいや横浜スタジアムなど横浜で人気のあるスポットへ乗り換えなしで行けます。また都内へもJRの横須賀線や東海道線で30分程度なので通勤・通学も便利ですね。反対方面に乗れば鎌倉や藤沢などの人気エリアにも一本で行けます。
車なら
1号線から横浜新道に乗って首都高へのアクセスも抜群!ベイエリア方面にあるコストコやアウトレットなどへも30分〜40分くらいで行けますよ。
私がこの街に住むなら…
食品や日用品などは近所にすぐに買いに行けるので仕事帰りや用事のついでにふらっと気軽に立ち寄れるところはポイントが高いですね! マンションの近くには公園やスポーツセンター、保育園、学習塾など子育て世代に嬉しい施設も充実しており、車や電車を使うことなく通えるので助かります。
リノベするなら
リノベするなら
物件について、売主さんに教えていただきました。
物件はファミリー層やシニア層がメインで落ち着いた雰囲気
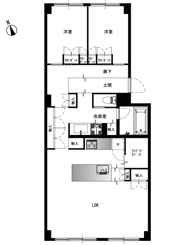
間取り図

リビングは広々としているので家族の団欒には最適な空間
売主さんが購入時にご自身ですてきにリノベされています。部分的に現況を活かして、自分好みに部分リノベして住むのも、おすすめですよ!
玄関
収納スペースもしっかり確保された、明るい印象の玄関

今のままでもすてきですが、玄関からアクセスのよい場所にファミリークロゼットを設けるのもおすすめです。収納を一括管理することで他のスペースを有効活用できるようになりますよ。
LDK

南向きなので日当たりや通風も快適

大型のソファーを置いても空間に余裕のあるリビングスペース

アイランドキッチンは外の景色を見ながら作業をすることができる
もともと和室があった場所をフローリングにしてリビングと一体化させ、大きく寛ぎやすい空間に変えました。日当たりが良いので、冬でも暖房をあまりつけなくても快適に過ごせますよ。

リノベでホテルライクなデザインに変更することもできます。モルタル調のアクセントウォールを使用することで、グレー基調の大人空間にも遊び心が生まれます。また、床材をペットの足元に優しい商品に変更するのもおすすめです。
洗面・浴室・トイレ

水まわりが1箇所にまとまっているので一筆書きの家事動線がスムーズ

既存設備を活かしたリノベで、欲しい設備をプラスするのもおすすめ。写真のように、愛犬のお世話に便利な台を造作することもできますよ。
個室

北側にある洋室は寝室や子ども部屋に最適

リビングから離れているので仕事部屋としてもおすすめ
北側の洋室はシンプルなつくりですので、趣味の部屋や仕事部屋など好きなようにカスタマイズができますよ。
バルコニー

バルコニーは2021年の大規模修繕で修繕工事済み
バルコニーは共用部分なのでリノベはできませんが、自分好みにアレンジすることは可能です。詳しくはこちら!
その他

共有通路からの景色。夏になるとここから小学校で開催する花火が楽しめる
お部屋の外

大規模な駐車場も完備。ゴミ捨て場もしっかりと清掃されている

ペットの足洗い場もあり。管理は日勤の形態

住人が多い大型マンションだが手入れがしっかりと行き届いている

駐輪場(左)とエントランス(右)も世帯数に合わせたゆとりのあるつくり
共有部分はとても綺麗に管理されていますね! 大型のマンションで住民数が多いですが、メリットはありますか?
お子さんがいる世帯が多いので、マンション内での子ども向けイベントも楽しめますし、友達も増えますよ! また日中在宅している世帯もいるので防犯的にも安心だと感じます。
駅が近く大型商業施設も充実し栄えていますが、物件周辺は落ち着いた雰囲気のエリアです。
都心までのアクセスも良く、周辺には買い物スポットや飲食店、クリニックなどもあり、幅広い年齢層にとって住みやすい住環境ではないでしょうか。また、ペットの飼育も可能ですので、駅徒歩圏内のマンションで探されている方は必見です。
