


東京駅から約20分という好立地なリノベーション物件。子育て環境のよさも見逃せない「コスモ板橋本町」5階
コスモ板橋本町のマンション情報を見る3,980万円
「コスモ板橋本町 5階」は、東京都板橋区にある中古マンション物件です。間取りはその他、専有面積は66m²、1986年3月築です。最寄り駅は十条駅 徒歩15分です。販売価格は3,980万円です(2026年5月時点)。
間取り
その他
面積
66m²
向き
南西
階層
5階
築年
1986年 3月
最寄駅
十条駅 徒歩15分
- 物件の詳細情報・周辺環境データを更新
価格情報
基本情報
東京都板橋区稲荷台
アクセス・周辺駅
利用可能な路線
近くの駅
板橋本町
徒歩約8分(0.6km)
十条
徒歩約12分(0.9km)
板橋区役所前
徒歩約15分(1.1km)
本蓮沼
徒歩約16分(1.2km)
東十条
徒歩約17分(1.4km)
新板橋
徒歩約20分(1.6km)
この街に住むなら
この街に住むなら
住んでいる街について、売主さんに教えていただきました。
駅の周りをお散歩
マンションから一番近い都営三田線の板橋本町駅は、飲食店や買い物施設もあって、日常の買い物には事欠かなさそうです。
3月にはオーケーもできて、ますます便利になりますよ。その隣の板橋区役所前のほうには仲宿商店街があって、そこでよく日用品の買い物をしています。

環七と中山道の交差点にある板橋本町駅周辺には、コンビニ、スーパー、カフェなど、商業施設がひと通り揃っている

多くの人で賑わう仲宿商店街はマンションから徒歩8分。大型スーパーもあって日々の買い物に便利
JR京浜東北線が乗り入れる十条駅も徒歩15分という距離ですが、利用されることはありますか?
どうしても京浜東北線を使いたいときには、という感じですね。でも、例えば東京駅に向かうとなっても、三田線で大手町までいけばいいので、都内の主要エリアへ向かう場合には三田線で充分だと思います。
その他周辺施設
|
・ピアンタ(マンションより徒歩14分) |
物件の周りをお散歩
大通りから少し入ったところにある閑静なエリアですよね。学校も多くてのどかな雰囲気なのも住み心地が良さそうです。
ファミリー層が多いので、ゆったりしていて過ごしやすいと思います。すぐ近くの帝京大学にある商業施設をよく利用させてもらっているんですけど、活気があっていい雰囲気です。公園も多く、大きな病院もすぐそこですし、子育て環境には良い場所だと思います。

帝京大学板橋キャンパスは徒歩3分。ケンタッキーやスターバックス、サブウェイ、ファミリーマートなど、施設が豊富に取り揃っている

大学の横には付属の病院、マンションの目の前が帝京中高等学校

マンションの裏手には石神井川が流れ、春は桜が咲き誇る。マンションより徒歩11分の東板橋公園には、動物と触れ合える板橋こども動物園も併設されている
その他周辺施設
|
・敬隣保育園(マンションより徒歩6分) |
お出かけするなら
近くだと池袋だったり、有楽町や銀座にも出やすいですね。あとやっぱりお子さんがいるご家庭なら、後楽園へのアクセスが良いのはすごく便利だと思います。電車で15分程度です。
普段車は使わないのですが、近くにカーシェアがありますし、高速の出入り口も近いので、車を使った遠出もしやすいですよ。
私がこの街に住むなら…
都内各地に出かけるも良し、出かけなくても、大学があるあたりは広々としていて、授業が行なわれていない休日は特に静か。川沿いで自然も感じながら、ゆったり英気を養えそうです。
リノベするなら
リノベするなら
物件について、売主さんに教えていただきました。

6階建て、総戸数37戸のコンパクトなマンションの5階
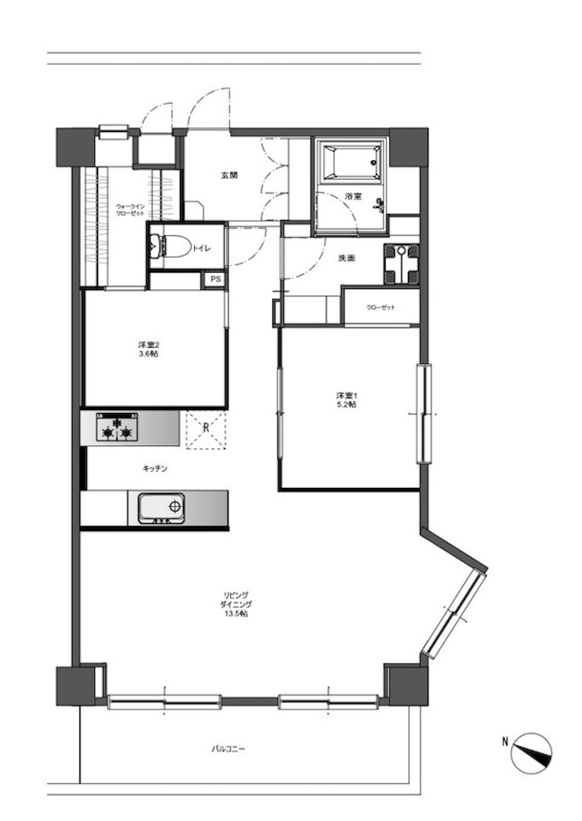
<間取り図>

66.04㎡の2LDK
リノベーションで、とくに玄関とリビングは広々とした余裕のある間取りに。リビングは日当たりがとても良く、過ごしやすい環境が整っています。
玄関

玄関土間は自転車を複数台置けるくらいの広さ。シュークロゼットの容量も多い

玄関正面の通路を広くすると、光と風が回りやすく心地のよい住まいとなります。
LDK

お客さんを呼んでも狭さを感じない13.5帖のリビング。キッチンはカウンタータイプなので、家事をしながら家族とコミュニケーションを取りやすい

角部屋で窓が多いのもポイント。フローリングには無垢材を使用。窓際にはインナーテラスが設けられている
リノベーションでは、来客を見込んでリビングを広くすることと、壁は塗装にすること、あとフローリングに無垢材を使うことは絶対と決めてました。リビングの形を縦長にする案もあったんですけど、日当たりの良さを重視して南と南西の窓を活かした横長の間取りを選びました。

前回のリノベーションで交換された設備を活かしつつ、キッチンの腰壁のアクセントカラーを変えるだけでもガラッと印象が変わりますよ。
洗面・浴室・トイレ

水まわりの設備はリノベーション時に新しくされており、消耗もほとんど見当たらない

水まわりなどのコンパクトな空間は、部分リノベには絶好のポイント。全体の雰囲気とは真逆のテイストにするのもおもしろそうです。
個室

寝室にすると東向きの窓から朝日が入って気持ちよく起きられる

納戸とウォークインクロゼット。小窓があるのでしっかり換気が行える
生活音としては、病院が近いぶん救急車の音が少し気になるかな程度。住んでいるとすぐに慣れると思います。近くに帝京高校があって、外にいると活気のある部活動の声とかが聞こえるんですけど、部屋では不思議と聞こえませんね。
バルコニー

洗濯物を干すには充分な広さ。高い建物は遠くにあるので景観も良い
バルコニーは共用部分なのでリノベはできませんが、自分好みにアレンジすることは可能です。
お部屋の外

清潔に整えられた風情のあるエントランス。自転車置場はエントランス横とゴミ置き場の前に設けられている

ゴミ置き場をはじめ、共有部分はとてもきれいに維持されている。エレベーターは一基
1986年築のマンションですけど、日々の管理や修繕によってきれいに維持されていますよね。管理の手厚さが伺えます。
そうですね。管理人さんが毎朝掃除をしてくださっていて、ゴミ置き場もいつもきれいですしとても助かっています。住んでいる方の年齢層は幅広く、感じのいい人ばかりでトラブルなども聞いたことがないです。理事会はここに引っ越したときに担当したので、しばらくは回ってこないと思いますが、担当になってもわかっている人が補佐で付いてくれるので困るようなことはありませんでした。
リノベーションから約4年ほどで内装や設備もまだまだ新しく、そのままでも充分気持ちよく住むことができます。最寄り駅から比較的近い場所にあって都心へ出やすい立地でありながら、教育機関や自然環境などの子育て環境も充実しています。都内に家族で過ごしやすい住まいを設けたいと考えている方はぜひ前向きに検討してみてください。