【成約済み】大宮近郊の広大なルーフバルコニー付き最上階物件。空の近さを堪能できる「ライオンズガーデンシティ浦和」13階
ライオンズガーデンシティ浦和
開放的なルーフバルコニー付き最上階物件です。内装は一度リノベーションを行っていて、玄関周りにスペースを設けているのが特徴。ルーフバルコニーは子どもが遊べるくらい広いので、一般的なマンションではなかなかできないお部屋づくりや過ごし方が楽しめます。
物件詳細

価格 | 3,580万円 |
---|---|
管理費 | 14,300円/月 |
修繕積立金 | 24,110円/月 |
間取り | その他(3SLDK) |
占有面積 | 90.00m² |
土地面積 | - |
物件階数 | 13階 |
総地上階数 | 13階建 |
構造 | SRC(鉄骨鉄筋コンクリート) |
総戸数 | 191戸 |
築年月 | - |
現況 | 空家 |
引き渡し日 | 相談 |
土地権利 | 所有権 |
方位 | 南 |
管理形態 | 全部委託管理 |
修繕状況 | - |
取引形態 | 媒介 |
管理会社 | - |
設計・施工会社 | - |
駐車場 | - |
建物設備 | モニター付きインターホン, ルーフバルコニー, 最上階, 都市ガス |
共有施設 | - |
ペット | - |
アクセス | JR埼京線 南与野駅 徒歩14分 JR湘南新宿ライン 浦和駅 バス19分 |
住所 | 埼玉県さいたま市桜区南元宿2 |
毎月の支払い目安
ローンの目安 | 約116,800円 |
---|---|
管理費 | 14,300円/月 |
修繕積立金 | 24,110円/月 |
合計 | 約155,210円 |
この街に住むなら
住んでいる街について、売主さんに教えていただきました。
駅の周りをお散歩

最寄り駅が南与野駅となる、このあたりを選んだ理由はなんでしょうか。



特別なこだわりはなく家庭の事情が理由ではあるんですが、住んでみると、駅の周りの再開発が活発で、商業施設もどんどん増えて便利なんです。日常の買い物で困ることはありません。基本的には駅周辺で済んでしまいます。
JR埼京線が乗り入れる南与野駅。駅前は拓けていて、大型スーパーや衣料品の店舗、飲食店などが点在している



ここから遊びに行く場所としては、やはり大宮が多いのでしょうか。



大宮まで埼京線で10分程度なので、そうですね。あとは浦和やさいたま新都心、東京方面であれば、やはり一番アクセスの良い池袋に行くことが多いです。幅広いジャンルの買い物や、一日過ごす場所として重宝します。
JR、私鉄、新幹線も通る便利な大宮駅。その隣のさいたま新都心駅では、さいたまスーパーアリーナや大型商業施設のコクーンシティなどを利用できる
その他周辺施設
・埼玉県立近代美術館(駅より徒歩18分) |
物件の周りをお散歩



大宮や浦和といった繁華街へのアクセスはいいですけど、ほどよい距離感のおかげで閑静で、落ち着いて暮らしていけそうなエリアだと思いました。



実際にファミリー層が多く住んでいますね。少子化で学校の規模が縮小される傾向にある中で、この地域の学校はクラス数も多く、たくさんの子どもが通っています。浦和が教育に力を入れているエリアというのも大きいでしょうね。
マンションから徒歩20分圏内にロヂャース、マミープラス、ヨークフーズといったスーパーが点在。徒歩5分のところにはコンビニがある



駅前だけでなく、マンションの近くにスーパーがあるのも、ファミリー層には嬉しい環境ですね。



公園も多いですし、車で10分くらいのところにある彩湖・道満グリーンパークでは、テントを張って、バーベキューやサイクリング、ウィンドサーフィンなどのアクティビティも楽しめるので、子どもと訪れる場所としてオススメです。
その他周辺施設
・マミープラス(マンションより徒歩12分) |
お出かけするなら



浦和駅周辺に行くなら電車よりもバスが楽です。マンションから歩いて5分の南元宿というバス停から向かえます。



開発でマンション近くの県道57号と国道463号がつながったので、埼玉スタジアムまでのアクセスがとても良くなりました。浦和レッズファンの方には特に良い条件だと思います!
私がこの街に住むなら…



大宮とさいたま新都心が近いという絶好の立地を最大限に活かしたいところ。さいたまスーパーアリーナで催されるさまざまなイベントにも積極的に参加して、日々を充実させたいですね。
リノベするなら
物件について、売主さんに教えていただきました。
総戸数191戸という大型マンションの最上階
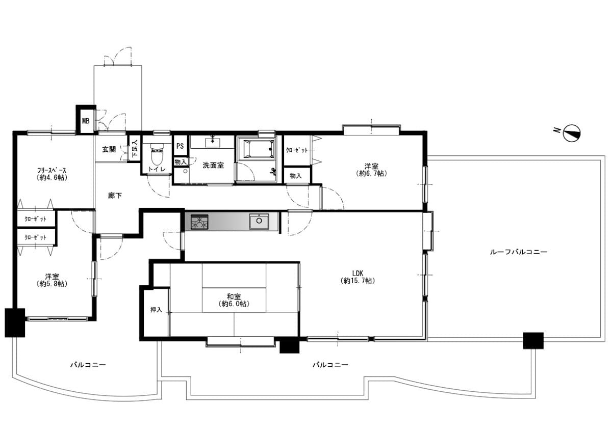
間取り図



リフォームによって築年数を感じさせない内装。玄関やリビングからバルコニーが見える抜けの良い空間は、特別感を演出してくれます。
玄関
ポーチ付きの玄関。リノベーションで玄関土間の横にオープンスペースが設けられ、アウトドア用品の置き場や趣味の空間など自由度が高い
クロゼット付き。大きな窓からバルコニーが見え、室内に中庭があるようなリッチな雰囲気
広い玄関土間は、ベビーカーやアウトドアグッズをそのまましまうことができてとっても便利。シューズラックをオープンにすると湿気がこもりづらく、清潔に保つことができます。
LDK
LDKよりも広いルーフバルコニーに面しているため、非常に広さを感じる。キッチンには南向きの窓からの採光や、内側のバルコニーに出られる扉から光が入りとても明るい



全面南向きのルーフバルコニーがついているお部屋ってなかなかないと思うんです。実際、それに魅力を感じて購入しました。砂場を作って子どもに砂遊びをさせたり、キックバイクで遊ばせられるくらい広いです。最上階で眺望も良く、周辺で行われている花火もよく見えます。
壁に向いたキッチンを対面式にすることで、家族やゲストと目線を合わせ会話しながら作業ができます。
洗面・浴室・トイレ
家族で住むなら、洗面台は複数人で使えるよう工夫をすることで、朝の忙しい時間も混雑せずに身支度ができますよ。リノベーションでは、配管から新しくできるので、設備も新しいものが入れられます。
個室
LDKに隣接する個室は、ルーフバルコニーに面しているのでとても明るい。その逆方向となる玄関側の個室も、西と南に窓を設けているので北側の部屋とは思えないほど明るい
和室にも窓が2つあって明るく開放感がある



マンションだとリビングまで行かないと窓がないことはよくあると思うのですが、この部屋はとにかく窓が多くて、玄関から開放感があります。日当たりが良く風通しもいいのでジメジメするようなことはありません。
バルコニー
南側にある約67平米の超広大なバルコニー。西側にもさらに2つバルコニーがあり、洗濯を干すなどの家事を行うスペースとなっている



バルコニーは共用部分なのでリノベはできませんが、自分好みにアレンジすることは可能です。
その他
室内廊下。大きな窓と凝った内装で、デザイナーズマンションを彷彿とさせる
お部屋の外
きれいに維持されている広々ロビー。エレベーターが2基あるので待ち時間をかなり抑えられる
エントランスに宅配ボックス。その目の前が管理人室なので、セキュリティとしても安心
駐車場は機械式。駐輪場のスペースも広い
ゴミ置き場は敷地内に。子どもを遊ばせられる小規模の公園も敷地内に設けられている



1997年築のマンションですが、築年数を感じさせません。管理の良さがうかがえます。



管理人さんの仕切りのもと、共有部分は常に掃除が行われてますし、一年半くらい前に実施された大規模修繕で外壁、ルーフバルコニーなどの防水、サッシの交換などがされたのもあると思います。
最寄り駅および周辺の再開発が著しく、マンションは大規模修繕されたばかり。お部屋も一度リノベーションが行われているなど、長期での住まいを検討しやすい条件が目白押しです。大宮やさいたま新都心がすぐ目の前なのに閑静なエリアという穴場感も見逃せません。教育機関・環境も充実しています。ご家族との長期を見据えた居住地としてぜひご検討ください。