


横浜&湘南エリアが生活圏の自然素材を活かしたおしゃれな注文住宅「横浜市港南区日野南4丁目戸建」
横浜市港南区日野南4丁目戸建の建物情報を見る4,480万円
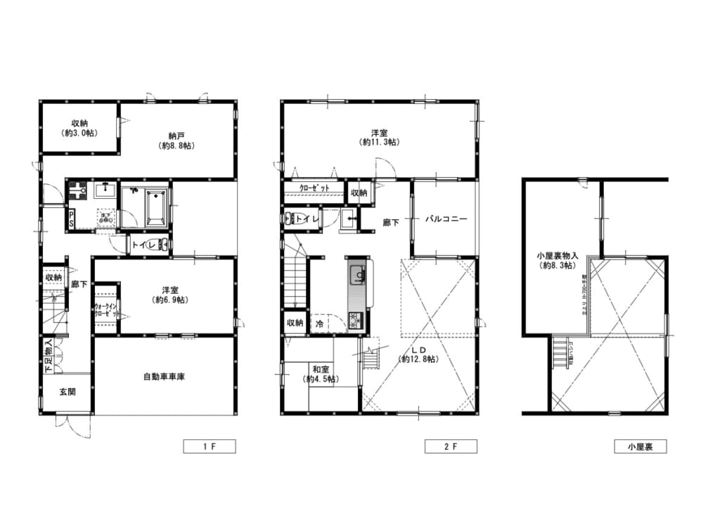
間取り
その他
面積
136.62m²
向き
西
築年
2011年 2月
最寄駅
港南台駅 徒歩17分
- 物件の詳細情報・周辺環境データを更新
価格情報
基本情報
神奈川県横浜市港南区日野南4丁目
室内設備
共用施設
この物件が気になったら
内見予約をするこの街に住むなら
この街に住むなら
住んでいる街について、売主さんに教えていただきました。
駅の周りをお散歩
最寄りの港南台駅は目前に大型商業施設があり、乗り入れている路線もJR京浜東北・根岸線と利便性の高いエリアですよね。
住む前から港南台バーズなどを時々訪れていて、街の雰囲気としてもいい場所だなと思って2011年に戸建を新築しました。駅からそう遠くなく大体徒歩20分弱くらいの距離感です。駅前もそうですが、道中にもスーパーやコンビニがあるので日常の買い物には事欠かないと思います。
路線の利便性としてはいかがでしょうか?
鶴見の職場まで1本で行けるので不便はありませんし、横浜やその周辺で人気の桜木町や関内にも1本で行けます。もちろん都心にも足を運びやすいです。電車が止まってしまったときはバスで上永谷や上大岡まで向かいます。大体20分くらいでしょうか。
- 港南台シネサロン(駅から徒歩約4分)
- ココス 横浜港南台店(駅から徒歩約2分)
- 港南台中央公園(駅から徒歩約5分)
物件の周りをお散歩
お家のある辺りは駅前とは打って変わって住宅地という雰囲気で、程よく自然も感じられるいい環境ですね。
長く住んでいる方も多いので、住み心地はいいと思います。ご近所トラブルなども耳にしません。閑静なぶん駅前に商業施設が集中しているので、休日は車で周辺に出かけてしまうことが多いです。車で出かけられる範囲にも魅力的なエリアが多いので、車があるととても便利です。
- 業務スーパー 石黒 港南台店(物件から車で約5分)
- ファミリーマート 日野南三丁目店(物件から徒歩約6分)
- ほっともっと 港南台4丁目店(物件から徒歩約7分)
- オーケー 港南台店(物件から車で約5分)
お出かけするなら
本郷台にあるアースプラザや洋光台の宇宙科学館、あとは大船が近隣で一番栄えている街なので、込み入った買い物や遊びに行く場所としてオススメです。
徒歩3分ぐらいのところにあるバス停から桜木町や上大岡、本郷台に向かうことができます。
みなとみらいのワールドポーターズ、赤レンガ倉庫、犬を連れて相模原の宮ケ瀬ダムにもよく行きます。湘南方面にも足を伸ばしやすいですし、小田原や箱根にも片道1時間半くらいなので、朝早くに行って日帰りで温泉に行ったりできます。
私がこの街に住むなら…
普段は港南台近隣の利便性を活用し、休日は都心方面よりも湘南方面に足を伸ばして、豊かな自然を感じる優雅なひとときを過ごしたいですね。車やバイクなどを利用して行動範囲を広げたいところです。
リノベするなら
リノベするなら
物件について、売主さんに教えていただきました。

間取り図

ウッドデッキの備わったおしゃれな戸建。リビングは天井が高く、窓から心地いい光が差し込む贅沢な空間が広がっています。
玄関


LDK

リビングは2階でしっかり日が入るので冬は暖かく、夏もシーリングファンがあるのでエアコン一つで空調管理ができます。1階は一年中涼しいので、夏を過ごすのにちょうどいいです。

洗面・浴室・トイレ


個室

もともと自分の家族と両親と一緒に住んでいた家なので、それぞれの部屋が広く作られています。自然素材を利用した注文住宅で塗り壁にしているので、シックハウス症候群の懸念が少ない家というのも特徴です。
バルコニー

その他
注文住宅ということで、建てられるときにいろいろとこだわったと思いますが、特筆した特徴といったらなんでしょうか?
やはり自然素材を使った安心して住める家ということと、天井の高いリビングでしょうか。住んでいるうちにだんだんと「ここは部屋にすればよかったかなぁ」とか、いろいろと考えていたので、次に住んでいただける方にはうまく活用してもらいたいです。
閑静な住宅地に佇むオシャレで好環境な一軒家。部屋の広さや収納スペースに優れているので、子どもの多い家庭でものびのび過ごせることでしょう。最寄り駅からもそこまで遠くないので普段の通勤・通学にも不便は少なく、駅前は買い物施設も充実。近郊の人気エリアにも足を運んで、家族と充実したライフスタイルを送ってみてはいかがでしょうか。
