静かな暮らしを楽しみたい!4LDKの広々とした空間「コスモ稲田堤ガーデンフォルム」3階
コスモ稲田堤ガーデンフォルム
京王相模原線とJR南武線、2つの路線が利用できる利便性の高い稲田堤エリア。物件は駅から徒歩8分ほどのところにあります。駅の近くには商店街やスーパーもあって、普段の買い物は徒歩で完結。日常に「ちょうどいい便利さ」がある街です。緑あふれる稲田公園でのんびり過ごしたり、よみうりランドやサンリオピューロランドで休日を楽しんだりと、自然もレジャーも身近な、幅広い世代に愛されるエリアです。
物件詳細
| 価格 | 4,580万円 |
|---|---|
| 管理費 | 13,700円/月 |
| 修繕積立金 | 27,800円/月 |
| 間取り | その他(4LDK) |
| 占有面積 | 96.37m² |
| 土地面積 | - |
| 物件階数 | 3階 |
| 総地上階数 | 5階建 |
| 構造 | RC(鉄筋コンクリート) |
| 総戸数 | 47戸 |
| 築年月 | 2001年3月(築24年) |
| 現況 | 所有者居住中 |
| 引き渡し日 | 相談 |
| 土地権利 | 所有権 |
| 方位 | 南西 |
| 管理形態 | 一部委託管理 |
| 修繕状況 | - |
| 取引形態 | 媒介 |
| 管理会社 | - |
| 設計・施工会社 | - |
| 駐車場 | - |
| 建物設備 | - |
| 共有施設 | - |
| ペット | - |
| アクセス | JR南武線 稲田堤駅 徒歩8分 |
| 住所 | 神奈川県川崎市多摩区菅稲田堤3-16-11 |
毎月の支払い目安
| ローンの目安 | 約149,400円 |
|---|---|
| 管理費 | 13,700円/月 |
| 修繕積立金 | 27,800円/月 |
| 合計 | 約190,900円 |
この街に住むなら
住んでいる街について、売主さんに教えていただきました。
駅の周りをお散歩
最寄り駅がJR南武線と京王線の2路線を利用できるのは便利ですね。
JRの方は駅を出てすぐに「トップ」というスーパーがあります。京王線のほうには、京王ストアがあります。会社帰りには家に近い「トップ」に立ち寄ることが多いですね。
スーパーがそれぞれの駅の近くにあるのはありがたいですね。
あと家のすぐそばに「まいばすけっと」があるんですよ。だから「あっ、買い忘れた!」って時もサクッと行けて助かってます。
生活圏内に複数のスーパーがあるって、すごく暮らしやすそうです!お隣の中野島駅まで出て買い物することってありますか?
はい、車で10分ほどのところに業務スーパーがあって、休みの日にまとめ買いしに行きます。品揃えが豊富でお得なので、家族でストックをまとめて買うにはぴったりです。
その他周辺施設
|
・ココカラファイン くすりセイジョー稲田堤店(稲田堤駅から徒歩1分) |
物件の周りをお散歩
小さなお子さんのいるご家庭にとって、保育園や学校の環境って気になりますよね。このエリアは、学校環境は充実しているのでしょうか?
はい、保育園は駅前にもありますし、他にも点在していて、選択肢はけっこうあるみたいです。小学校までは少し距離があるものの、静かで落ち着いた環境です。子育てには向いてる街だと思いますよ。
穏やかな環境っていうのは安心ですね。休日はご家族でどこかにお出かけされたりしますか?
近所の稲田公園によくウォーキングに出かけます。春になると桜が本当に見事に咲くので、歩いてるだけで癒されます。子どもが小さい頃は「よみうりランド」によく行ってました。車でもすぐですし遊園地としてもちょうどいい規模感で家族でゆったり楽しめます。「サンリオピューロランド」も電車で行きやすいので、休日のちょっとしたレジャーって感じで遊びに行ってました
家の周りでのんびりもできて、ちょっと足を伸ばせばテーマパークにも行けるなんて、子育てファミリーにとっては理想的な環境ですね!ご自宅の近くで「ここはぜひ!」っていうおすすめの飲食店はありますか?
焼肉好きなら「味ん味ん」にはぜひ行ってほしいです。お肉が美味しくてボリュームもあって、しかもリーズナブル。いつも行列ができていて、地元でも評判の人気店です.。それと、稲田堤にはラーメン店がたくさんあるんですよ。駅周辺だけでも個性派ラーメン店がずらり。うちの子も「次はどこ行こうかな」って楽しみにしてるくらいです笑
その他周辺施設
|
・まいばすけっと 菅稲田堤2丁目店(物件から徒歩6分) |
お出かけするなら
JR南武線の稲田堤駅から新宿駅までは約30分。反対方面の鎌倉までは約70分ほど。仕事に遊びにアクセス抜群です。
八景島シーパラダイスまで高速を使って約1時間ほど。箱根の芦ノ湖までなら約2時間。混雑している首都高速を使用しないため、渋滞に巻き込まれず遊びにいけるのは、うらやましい限り。
私がこの街に住むなら…
駅近で交通も便利、買い物もグルメも充実。休日にはすこし足を伸ばして海に行ってみたい。
リノベするなら
物件について、売主さんに教えていただきました。


築年2001年
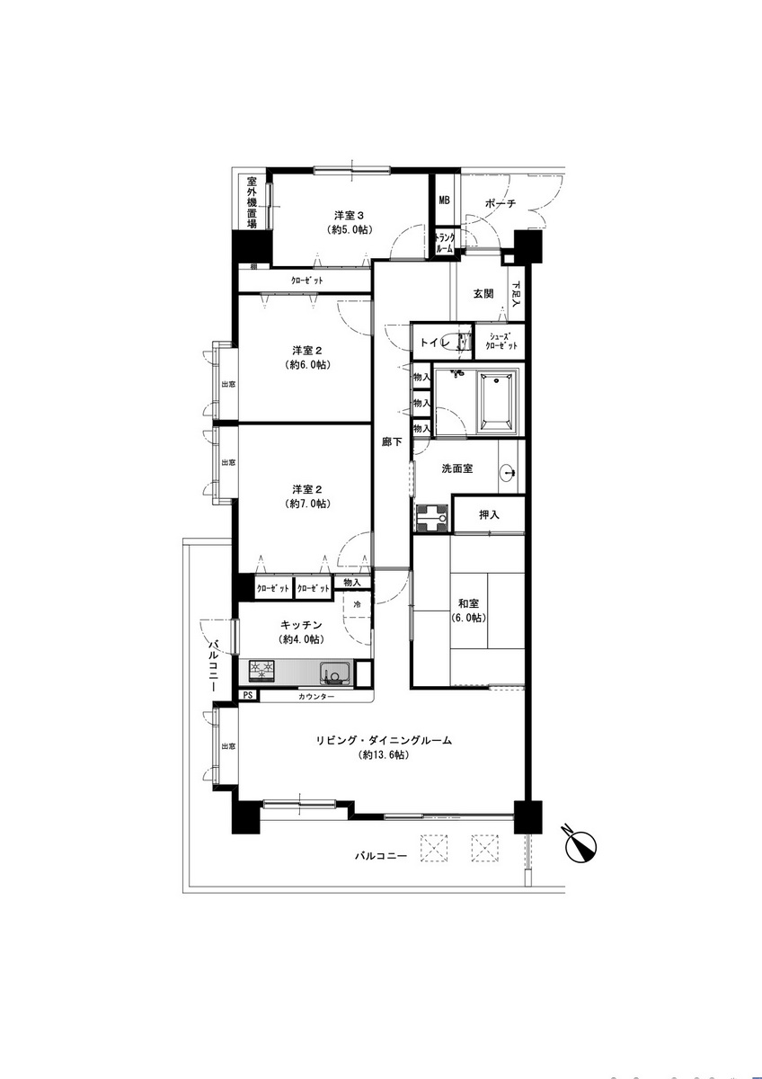
間取り図


4LDKで96.37㎡
明るく風通しの良いリビングを中心に、ゆったりとした空間が広がっています。どの部屋にも陽の光が差し込むのもうれしい造りですね。
玄関


大きな姿見で身支度もバッチリ!収納もスムーズな玄関スペース。屋外ポーチ付き(写真右)で、ベビーカや自転車置き場にも最適


玄関まわりはすっきりと機能的に。 姿見を設置することで、お出かけ前の身だしなみチェックはもちろん、空間に広がりも感じられます。
LDK


南からの光がやさしく差し込む、広々とした寛ぎ空間。床暖房完備で、冬の朝も快適に過ごせる安心のぬくもり
このお部屋で、特に気に入っていらっしゃる場所はどこですか?
やっぱりリビングですね。開放感があって、日差しもたっぷり入るんです。風の通りもとても良くて、本当に心地いいんですよ。キッチンにも大きな窓があって、そこからバルコニーに出られるので、風がスーッと抜けて気持ちいいんです。騒音もほとんどなくて、窓を開けていてもとても静か。治安も良くて、落ち着いた雰囲気がずっと続いています。


大きな窓から風が通り抜ける開放感あふれる対面キッチン。調理中も快適、家族との会話が自然と弾む設計◎
キッチンは広さもしっかりあるし、調理するスペースも充実しています。


素材感を活かした落ち着きのある空間に。 コンクリートや木の質感を取り入れることで、シンプルながらも居心地のよい住まいが実現します。
洗面・浴室・トイレ


壁一面の大きな鏡が目を引く洗面所。朝の身支度もスムーズで、空間に奥行きが出るデザイン性も魅力。明るく清潔感のある雰囲気で、一日の始まりが心地よく整う場所


リノベーションでは、配管から新しくできるので、設備も新しいものが入れられます。
個室


日差しがふんわり差し込む出窓付きの個室。やさしい光に包まれるプライベートな時間が心地よく流れる空間


2面採光で朝から夕方まで自然光がたっぷり届く角部屋(写真左)。各個室には廊下を使って行き来できる(写真右)


リビングの隣にある和室。落ち着きがあってなんだかホッとする空間
バルコニー


L字型に広がるバルコニーは、ちょっとしたベンチやグリーンを置いて自分だけのくつろぎ空間に。キッチンからも出入りできて、風通しも動線も快適そのもの◎
バルコニーは共用部分なのでリノベはできませんが、自分好みにアレンジすることは可能です。詳しくはこちら!
その他


追い炊きはもちろん浴室乾燥(写真右)も完備


インターホンとリビングの床暖房スイッチ(写真右)。冬は毎朝タイマーで暖かくしておくのがおすすめ!
お部屋の外


毎日を迎えてくれる、高級感のある美しいエントランス(写真右)。共用部まで丁寧に手入れされた、清潔で気持ちいい空間


24時間ゴミ出し可能(写真左)。駐車場は立体式で、駐車場の奥には駐輪スペースがある
このマンションにはどのような世代の方がお住まいですか?
最近は、本当にいろんな世代の方が増えてきました。子育て中のご家庭も多いですし、お子さんが独立してご夫婦二人でゆったり暮らしている方も。皆さんとても感じのいい方ばかりで、挨拶を交わすたびに「ああ、ここに住んで良かったな」って思います。
住人の方の雰囲気がいいと、それだけでも暮らしやすさがぐっと上がりますよね。マンションの管理面については、いかがですか?
管理人さんがとても親切で、共用部分の掃除もいつも行き届いています。エントランスやエレベーターもいつもきれいで清潔感がありますよ。
採光の良いリビングと風が抜けるキッチン。部屋数も多く、日常の心地よさが丁寧に設計されています。静けさと便利さを兼ね備えた理想の物件です。近くに自然も多いため子育て世代や、ゆったりのんびり生活したい方には人気のエリア。世代を問わず暮らしやすい空間が広がっています。ぜひ一度足を運んで、心地のよさを実感して欲しい物件です!
























