陽だまりの17帖リビングで、家族とのんびり過ごすゆとりの時間を。南向き×静かな住宅街が魅力の「フォレストリア増尾」2階
フォレストリア増尾
週末は車で大型モールへショッピング、平日は穏やかな住宅街でのびのび子育て。そんなふうに、家族との時間とプライベートなゆとりを心地よく両立できる住まいが、増尾エリアの魅力です。都心や千葉・埼玉方面へのアクセスも快適で、徒歩圏内には自然豊かな公園や商業施設がそろい、日々の生活もスムーズ。自然と利便性、そのどちらも妥協しない、家族にちょうどいい暮らしがある3LDKの物件を紹介します。
物件詳細
| 価格 | 2,680万円 |
|---|---|
| 管理費 | 6,470円/月 |
| 修繕積立金 | 3,330円/月 |
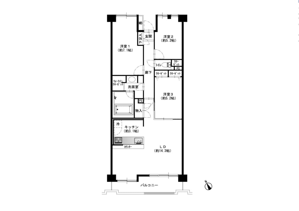
| 間取り | 3LDK |
| 占有面積 | 79.08m² |
| 土地面積 | - |
| 物件階数 | 2階 |
| 総地上階数 | 4階建 |
| 構造 | RC(鉄筋コンクリート) |
| 総戸数 | 69戸 |
| 築年月 | 1991年3月(築34年) |
| 現況 | 所有者居住中 |
| 引き渡し日 | 相談 |
| 土地権利 | 所有権 |
| 方位 | 南西 |
| 管理形態 | 全部委託管理 |
| 修繕状況 | - |
| 取引形態 | 媒介 |
| 管理会社 | - |
| 設計・施工会社 | - |
| 駐車場 | - |
| 建物設備 | 追い焚き機能 |
| 共有施設 | EV, オートロック, ペット飼育, 駐車場, 駐輪場 |
| ペット | ペット可 |
| アクセス | 東武野田線 増尾駅 徒歩8分 |
| 住所 | 千葉県柏市中原2-5-1フォレストリア増尾 |
毎月の支払い目安
| ローンの目安 | 約73,200円 |
|---|---|
| 管理費 | 6,470円/月 |
| 修繕積立金 | 3,330円/月 |
| 合計 | 約83,000円 |
この街に住むなら
住んでいる街について、売主さんに教えていただきました。
駅の周りをお散歩
増尾駅周辺の環境についてお伺いします。どのような雰囲気の場所になりますか?
駅を出てすぐの通りにはコンビニやドラッグストアなど、日常的に使える店舗が揃っていて便利です。夜遅くまで賑わうエリアではなく、落ち着いた環境だと思います。
治安面でも心配することはなさそうですね。
夜間にコンビニへ行ったり、犬の散歩をしたりするご近所さんもいて、人の気配が途切れないのも安心できると思います。
増尾駅周辺は、小さなお子さんがいるご家庭や、女性の一人暮らしでも安心して暮らせる環境だと私は感じています。
チェーン系の飲食店もたくさんあるし、ユニクロもあってファミリー層に人気がありそうですね。
駅前には大きなショッピング施設がないといっても、ファミリー層には必要なものがちゃんと揃っていて、でも過度に混み合わない
という、ちょうど良い暮らしやすさがあると思います。
都心などへのアクセスはいかがですか?
私は普段、車通勤がメインなので電車は週に数回しか使いません。でも、ご近所の方は毎日柏駅まで自転車で出て、そこから電車で通ってるそうです。
柏で常磐線に乗れれば、あとは都内に入るのはスムーズとお話されていました。
アクセスを便利にするなら、自転車+柏駅が良さそうですね。住むなら「電車の乗り継ぎ含めてうまく付き合う」というのがコツのようですね!
物件の周りをお散歩
マンション周辺はとても静かな場所ですね。公園などもたくさんありますか?
防災公園というのが近くにあって、特に休日は子ども連れのファミリーや犬を連れた方が集まっていて、とても和やかな雰囲気です。
「公園で顔見知りになる」なんてことも珍しくなくて、地域のつながりが自然に生まれる感じです。
のんびり過ごすにはいいところですね!おすすめの飲食店などはありますか?
ファミリー向けなら、マンションの近くにあるバーミヤンや夢庵なんかは良さそうですね。あとは「こはく」というレストランがおすすめです。洋食中心で、友達同士やカップルで利用されるのも良いと思います。ランチやコース料理もあり、とてもおいしいです。
保育園や幼稚園も近いのでしょうか?
そうですね。近くにいくつかありますので、小さなお子さんのいるご家族でも安心だと思います。
・ユニクロ 柏増尾台店 物件から徒歩3分
・バーミヤン 柏増尾台店 物件から徒歩4分
・デニーズ 柏増尾台店 物件から徒歩9分
お出かけするなら
流山おおたかの森S・Cはいかがでしょう。駅直結のショッピングモールでラクラクおでかけできますよ。電車なら20分弱。家族で楽しめそう!
ふなばしアンデルセン公園もおすすめです。滑り台・動物ふれあい・アスレチックなど、一日いても飽きないですし、都心よりも空いてて穴場な大型公園系スポットです。
私がこの街に住むなら…
休日は家族でアリオ柏やテラスモール松戸へ。自然もショッピングも楽しめて、毎週どこに行こうかワクワクします。普段は近所のスーパーや公園で十分だけど、車があれば選択肢がぐんと広がる。静かな街で落ち着いて暮らしながら、ちょっとアクティブに過ごせるのも魅力ですね。
リノベするなら
物件について、売主さんに教えていただきました。




ドアを開けたら、奥まで視界が抜ける大きなリビング。17帖ってこんなに広いんだってびっくりしました。家具を置いてもまだ余裕がありそうで、子どもが走り回っても安心。キッチンからの見通しも良くて、家族の気配を感じられるのがうれしいだろうなって思いました。
<玄関>




玄関正面のタイル壁が、住まいの第一印象をつくるアクセントに。光の入り方で表情が変わり、シンプルな空間にほどよいリズムと世界観を添えてくれます
<LDK>


南向きの窓からはたっぷりの自然光が入ってきて、昼間は電気をつけなくてもかなり明るいです。晴れた日はカーテン越しに入る柔らかい日差しが心地よくて、ついお昼寝したくなっちゃうくらいなんです。


キッチンで料理をしながらリビングのテレビの音を聞いたり、一体感のある間取りが、本当に心地いいんです。
友達や親戚が来たときも、「みんなで食べて、くつろいで、おしゃべりして」が自然にできるのも大きなポイント。料理をしながらでも会話が弾むので、ホームパーティーにも向いてます。


木の風合いが際立つフローリングは、空間全体にあたたかみをもたらす存在。スタイリッシュなキッチンとの対比が、空間に立体感と奥行きを与えています。ナチュラルながらも一癖ある床面が、暮らしの舞台としての魅力を高めています。
<洗面・浴室・トイレ>




リノベーションでは、配管から新しくできるので、設備も新しいものが入れられます。
<個室>




寝室として使用できる部屋があるのは嬉しいです。ダブルベッドを置いてもまだ余裕がある広さですし、家族構成が変わってもフレキシブルに対応できるので、「長く住む」にも適してると思いますよ!
<バルコニー>


バルコニーは共用部分なのでリノベはできませんが、自分好みにアレンジすることは可能です。詳しくはこちら!
<その他>


<お部屋の外>




マンションはどのような世帯の方が多いですか?
ファミリー層が中心です。特に目立つのは、小学校低学年〜中学年くらいのお子さんがいるご家庭。朝になると子どもたちがランドセルを背負って元気に通学している姿を見かけますし、近くの防災公園では親子で遊んでいる様子もよく見られます。とても穏やかで気持ちのいいコミュニティができていると感じています。
マンション全体の住み心地はいかがですか?
住人は子育て世帯が中心で、共用部もきれいに保たれ、落ち着いた雰囲気のある安心感ある環境です。駅徒歩圏ながら周辺は静かで、公園や買い物施設も充実。車利用中心ならさらに快適で、暮らしやすさを実感できる住まいだと思います。
柏や船橋といった人気エリアにスムーズにアクセスできる立地ながら、周辺は静かな住宅街。自然が身近にある落ち着いた住環境が魅力です。広々としたリビングに加え、独立性の高い3つの洋室を備えた間取りは、子育て中のご家族にもぴったり。徒歩圏には公園やスーパーも揃い、日々の暮らしに便利さと穏やかさを両立。都市の利便性と郊外のゆとりをバランスよく楽しめる物件です。


























