【成約済み】自然がすぐそこに。家族の豊かな感性を育む「ルネ船橋新高根レジデンシャルヴィラ」4階
ルネ船橋新高根レジデンシャルヴィラ
駐車場と駐輪場が全戸に完備されています。自然に囲まれた開放的な水栓付きバルコニーもお気に入り。幼稚園・保育園や学校も近く、のびのび子育てしたい方にもピッタリの環境ですよ。
物件詳細
| 価格 | 2,480万円 |
|---|---|
| 管理費 | 13,900円/月 |
| 修繕積立金 | 6,260円/月 |
| その他費用 | - |
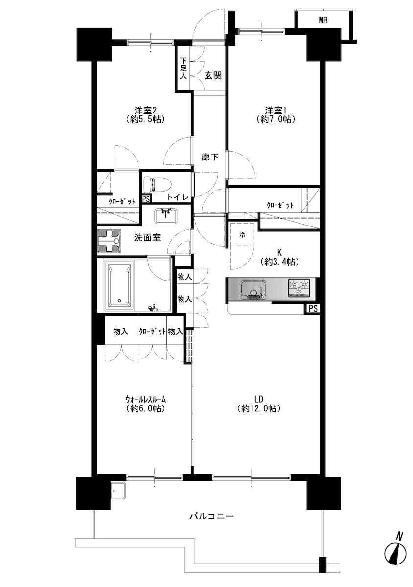
| 間取り | 3LDK |
| 占有面積 | 76.00m² |
| 土地面積 | - |
| バルコニー面積 | - |
| ルーフバルコニー面積 | - |
| 物件階数 | 4階 |
| 総地上階数 | 9階建 |
| 構造 | RC(鉄筋コンクリート) |
| 総戸数 | 150戸 |
| 築年月 | 2009年2月(築16年) |
| 現況 | 所有者居住中 |
| 引き渡し日 | 応相談 |
| 土地権利 | 所有権 |
| 方位 | 南 |
| 管理形態 | 全部委託管理 |
| 修繕状況 | - |
| 取引形態 | 媒介 |
| 管理会社 | - |
| 設計・施工会社 | - |
| 駐車場 | 自走式駐車場・サイクルポート1世帯1区画無償 |
| 建物設備 | 24時間換気, スロップシンク, WIC, 浴室乾燥 |
| 共有施設 | オートロック, 駐輪場, 駐車場, バイク置き場, ペット飼育, EV |
| ペット | - |
| アクセス | JR中央・総武線 船橋駅 バス20分 新京成線 高根公団駅 徒歩17分 東葉高速線 飯山満駅 徒歩33分 |
| 住所 | 千葉県船橋市新高根2丁目4-1 |
| 制限事項(特定事項) | - |
毎月の支払い目安
| ローンの目安 | 約67,700円 |
|---|---|
| 管理費 | 13,900円/月 |
| 修繕積立金 | 6,260円/月 |
| 合計 | 約87,860円 |
管理状況

スムナラでは、「重要事項調査報告書」を通じて、安心して物件を選んでいただけるようサポートしています。
重要事項調査報告書とは、マンションの詳細データがまとまった書類で、「管理体制の充実度」「大規模修繕の履歴」「修繕積立金の状況」などが確認できます。
購入後に後悔しないためには、建物の外観や立地だけで決めるのではなく、見えない部分、特に管理状況や修繕計画をしっかり確認することが大切です。
重要事項調査報告のダウンロードにはログインする必要があります。 ログインするとさらに便利にスムナラを利用できます。
この街に住むなら
住んでいる街について、売主さんに教えていただきました。
駅の周りをお散歩
最寄り駅は新京成線の高根公団駅。駅前には大きなスーパーが2つあり、ドラッグストアや総合病院も。コンパクトに必要なものが揃いますね。
新京成線高根公団駅前の商業施設「エポカ高根台」
安くて美味しいコロッケ屋や飲食店もありますよ。東葉高速鉄道の飯山満駅もよく利用します。こちらは東西線直通で、都内にもアクセスがいいんです。マミーマートやビバホームも周辺にあり、買い物にはこちらをよく使っています。
マミーマート 飯山満駅前店
ビバホーム 船橋店
それは便利ですね!船橋駅にもバス1本でアクセスできるのも魅力的です。
最寄りバス停の船橋グリーンハイツ駅は始発・終点駅になっています。利用者が多いですが、早めに並べば確実に座れますよ。
かかりつけの病院などは周辺にありますか?
小児科なら車で行ける「船橋青い空こどもクリニック」が評判がよいです。救急の時は船橋市立医療センターにかかったかな。
小児科「船橋青い空こどもクリニック」
郊外でありながら総合病院も複数選択肢があるのは安心できますね!
その他周辺施設
|
・カスミ フードスクエア 高根台店(高根公団駅から徒歩4分) |
物件の周りをお散歩
物件の周辺を案内していただきましょう。建物の目の前には立派な桜並木! 歩いていても気持ちがいいですね。


春は桜が見事に咲きますよ。ワンちゃんのお散歩にもいいですよね。桜並木を抜け、住宅地を10数分歩くと最寄りの小学校、中学校があります。
物件から徒歩12分の船橋市立高根東小学校
高根公団駅から物件までの間に保育園もいくつか見かけました。子育て世帯にも安心ですね。
マンションの近くには緑台中央公園という大きな公園もあります。最寄りスーパー「リブレ」のすぐ裏で、買い物ついでに立ち寄りやすいんです。
物件から徒歩7分のスーパー「リブレ京成 高根グリーンハイツ店」
緑台中央公園
閑静な住宅地という印象ですが、近くにおすすめの飲食店などはありますか?
焼肉屋さんが多いですね。おしゃれなお店なら、車で3分の「蔵六三三〇」がおすすめ。小学生未満NGですが、本格的なチーズ料理が楽しめて予約必須の人気店なんですよ。
それは行ってみたい!家族で気軽に通えるお店もありますか?
物件近くの洋食店「ヒラ井」は昔ながらの味で美味しいです。車で5〜6分のラーメン店「麺屋武士道」も好きでよく食べに行きます。
隠れた名店や地元で人気のお店がいっぱい。これは開拓しがいがありそうです!
その他周辺施設
|
・みどり台幼稚園(物件から徒歩7分) |
お出かけするなら
車なら
周辺は坂が多いので皆さん車移動が基本です。「ららぽーとTOKYO-BAY」は家族のおでかけにピッタリ。混雑を避けるため早めの時間に出るのがおすすめです。
バスなら
始発・終点駅の最寄りバス停から船橋駅まで1本です。
電車なら
飯山満駅なら、2駅で西船橋駅にアクセスできJRの乗り換えも便利です。東西線直通なので乗りっぱなしで中野まで行けちゃいます。
リノベするなら
物件について、売主さんに教えていただきました。


2009年竣工、総戸数150戸でペット可物件。大規模修繕を終えたばかりで外観もキレイだ


ファミリーに人気の3LDKの間取り。日当たりのよい南向き
高級感のある落ち着いたエントランスとロビーがすてき。お部屋に入ると、広くて明るい玄関から、バルコニーへと気持ちよく視線が抜けます。
玄関




玄関の壁をスチールで仕上げれば、日傘や帽子などの小物類をマグネットで吊るすことができて忘れ物防止になります。
LDK


見晴らしがよく心地よいリビングですね。
目の前に建物もなく自然が身近に感じられます。窓を開けると玄関側に向かって南北に風がとおり、気持ちがいいんですよ。




ワンちゃんや猫ちゃんがいるご家庭は水まわりに扉をつけることでペットの立ち入りを制限し、お掃除もしやすくなります。
<洗面・浴室・トイレ>


まだまだ綺麗で既存利用もできる水まわり


水まわりを直線上に配置することで家事動線を効率化させることができますよ。
<個室>


ウォークインクロゼット(以下WIC)付き、5.5帖の洋室


家族で使いやすい3LDKの間取りと、各所に設けられた大きな収納スペースが嬉しいですね。モノが増えやすい子育て世帯の方でもスッキリ暮らせそうです。
バルコニー


空と緑が望めるバルコニー。水栓付きで奥行きもあり、子ども用プールや家庭菜園にもぴったりだ
バルコニーは室内で一番のお気に入りで、購入の決め手の1つになるほど。広さも奥行きもあるので多用途に使えると思いますよ。
バルコニーは共用部分なのでリノベはできませんが、自分好みにアレンジすることは可能です。詳しくはこちら!
その他


季節家電の収納やファミリークロゼットにも便利なWIC(左)とリビング収納(中央)、室内廊下(右)
お部屋の外


上質感のあるエントランスとロビーが迎えてくれる


全世帯に自走式駐車場と駐輪場が1区画用意されているのが嬉しいポイント




全世帯に駐車場が完備されているのは嬉しいですね!自走式ですし広々としていて運転もしやすそうです。
この辺りは皆さん車移動が中心なので、本当に助かっています。
大規模なマンションですが、隅々まで清潔感がありますね。
清掃の方がこまめに対応してくださっています。管理人の方もお人柄がよく、とても住み心地のよいコミュニティだと思いますよ。
四季の移ろいを感じられる環境でのびのび遊び、お子さんの身体も感性も豊かに育まれそう。近くにはドッグラン付きのカフェもあり、ワンちゃんも快適に暮らせる環境が整っています。物件費用を抑えてリノベに予算をかけたい方にも非常におすすめの穴場物件ですよ。




















